
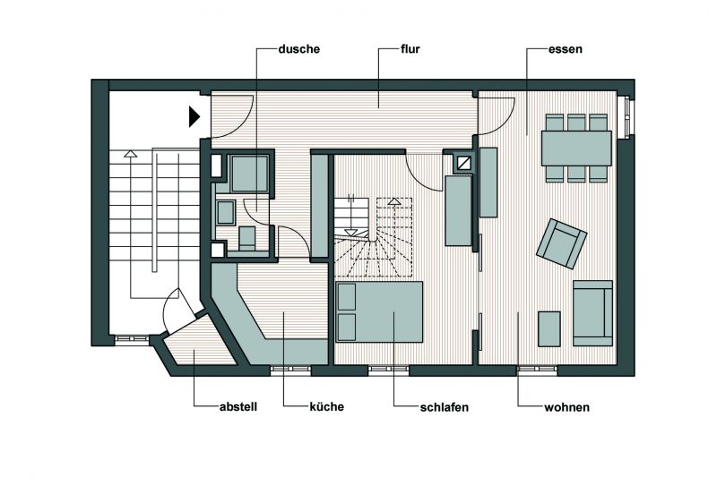
Ziel des Entwurfs ist es, einer in einem Karlsruher Hinterhof gelegene Dachgeschosswohnung, die bislang als Studentenwohnung diente, mehr Wohnqualität zu verleihen.
Durch die Aufstockung eines kleinen Staffelgeschosses entsteht ein Wellnessbereich mit grosszügiger Dachterrasse und beidseitigem offenem Blick über die Hinterhoflandschaft.